汕市区府〔2025〕37号
各镇人民政府、街道办事处,区直有关单位:
《汕尾市城区捷胜渔港管理章程(试行)》已经区政府九届一百一十二次常务会议研究通过,现印发给你们,请结合实际认真贯彻执行。执行过程中遇到的问题,请径向区农业农村和水利局反映。
汕尾市城区人民政府
2025年11月1日
汕尾市城区捷胜渔港管理章程(试行)
第一章 总则
第一条 为维护渔港秩序,保护渔港环境,促进渔业经济发展,加强渔港监督管理,保障渔港设施、渔业船舶、公民人身及财产安全,根据《中华人民共和国海上交通安全法》《中华人民共和国环境保护法》《中华人民共和国渔港水域交通安全管理条例》《广东省渔港和渔业船舶管理条例》等有关法律法规,结合捷胜渔港管理实际,制定本章程。
第二条 本章程适用于在捷胜渔港(以下简称“本渔港”)范围内的船舶及从事渔港运营管理、经营活动的公民、法人和其他组织。涉渔乡镇船舶按照《关于印发<汕尾市涉渔乡镇船舶管理办法(试行)的通知》(汕农农〔2024〕256号)等规定执行。
第三条 区农业农村和水利局为本渔港的行政主管部门,其所属的海洋综合执法部门为本渔港的监督管理机构;捷胜镇人民政府为本渔港的港务管理机构,负责本渔港事务管理工作,包含设施维护、经营、污染防治及安全生产管理工作。
市场监督管理部门按职责负责本渔港区域内各类市场主体登记,按照市场监管部门职责对市场主体生产经营行为依法监管,营造公平竞争环境。
发展改革部门负责牵头协调有关部门共同对本渔港区域内的成品油经营许可及经营活动开展监督管理工作。
应急管理部门负责指导本渔港区域内的安全生产综合监管工作,并对相关部门落实渔港区域内安全生产情况进行监督管理。
消防救援部门负责对本渔港区域的消防管理工作进行指导,协助港内消防救援工作,并对渔港陆域范围的消防管理工作进行监督。
公安部门负责本渔港区域内社会治安管理等工作。
城市管理和综合执法部门、镇综合执法部门负责本渔港陆域部分港容港貌、环境卫生的监督管理工作。
供电部门按职责负责落实好本渔港区域内的用电检查、指导和监督管理工作,协助管理、维护港区内其他用电设备。
住房城乡建设部门、海事管理机构配合做好本渔港区域内的非渔业船舶管理工作。
生态环境部门、自然资源部门、文化广电旅游体育部门、财政部门等涉及本渔港管理的其他成员单位及其职能部门根据各自职责负责相应管理工作。
第二章 渔港概况
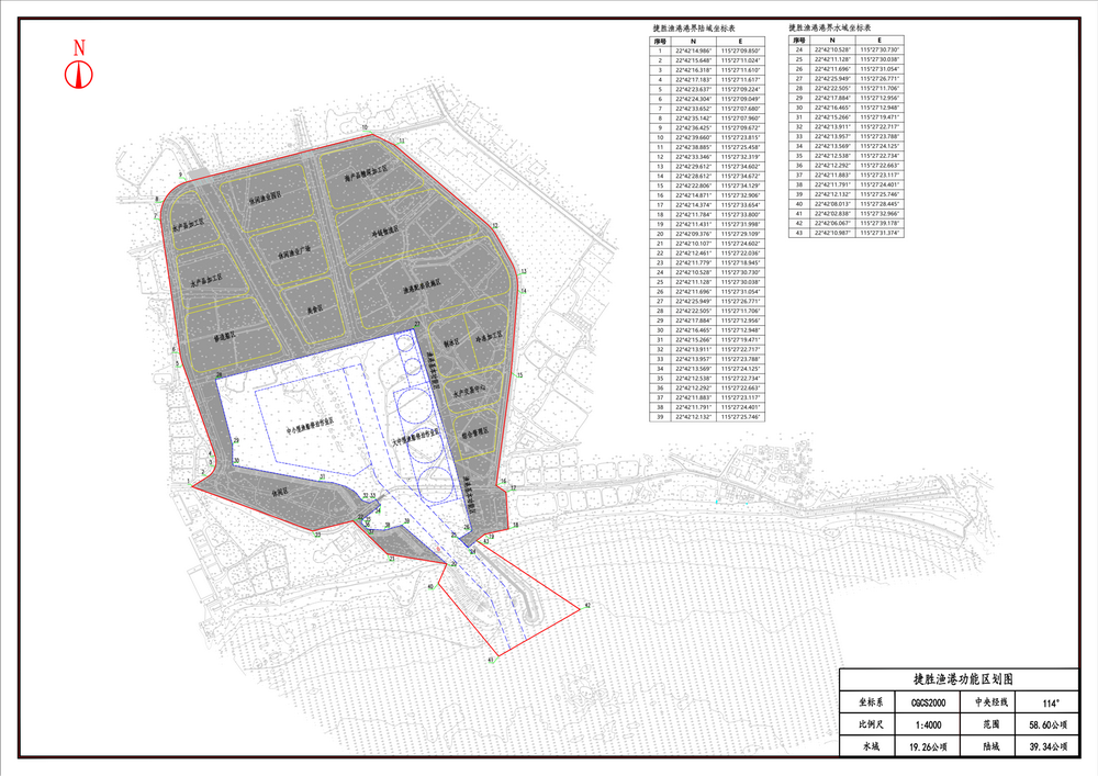
第四条 本渔港位于汕尾市城区捷胜镇,中心地理坐标为:115°28′9″E,22°42′24″N。
第五条 本渔港总面积约58.60万平方米,其中水域面积约19.26万平方米(含航道、港池、停泊区、避风塘等),陆域面积约39.34万平方米(含岸线、码头、装卸作业区、水产品交易区、沿港道路及渔港配套用地等),渔港港界为以下坐标点连线范围:
捷胜渔港港界坐标表(详见附件1)
第六条 渔港的水域、陆域范围一经确定不得擅自更改。
第三章 渔港经营
第七条 本渔港经营主体从事经营行为须获得许可事项登记的,要向相关部门获得许可证,并到市场监督管理部门办理执照,方可从事渔港经营活动。
第八条 本渔港经营主体须依法办理商事登记,遵守渔港管理的有关法律法规,依法经营,并服从区农业农村和水利局、渔港监督管理机构及其他职能部门的管理,负责制定安全应急处置预案并组织实施。
船舶、海上设施因防台风、风暴潮等紧急情形需要进入渔港避险的,本渔港经营主体和渔港管理有关部门应当为其提供便利,不得拒绝。
第九条 本渔港经营主体应加强安全生产管理,保障渔港设施、码头、道路的正常运行,并对经营活动范围内的安全工作负责。
第十条 本渔港经营主体应当提供公平、良好的服务,承担渔港日常维护,并在其经营场所公布经营服务收费项目和标准,使用国家规定的经营票据。
第十一条 本渔港经营主体从事危险品作业的,应当向渔港监督管理机构提出申请,经批准后在指定的安全地点装卸。
第十二条 本渔港经营主体使用渔港水域进行作业的,除依照国家规定履行审批手续外,应当报请渔港监督管理机构批准。
第十三条 禁止在渔港港池、锚地、航道、避风塘从事捕捞作业和养殖生产。
第十四条 本渔港经营主体应当按照核定功能使用渔港设施,配备相应的人员、设备,并保证渔港设施处于良好状态。
第四章 渔港安全管理
第十五条 本渔港安全生产管理纳入汕尾市城区安全生产管理体系。区农业农村和水利局负责牵头协调本渔港安全生产管理工作。捷胜镇人民政府加强本渔港安全生产管理,落实有关规章制度,加强渔业安全生产管理员队伍建设。相关村民委员会应协助做好本渔港安全生产管理工作。
第十六条 区应急管理局、区农业农村和水利局指导捷胜镇人民政府制定渔港防台风预案,细化遇强台风港内停泊的船上人员转移上岸预案。防台风期间,区应急管理局、区农业农村和水利局、捷胜镇人民政府等相关单位应按防台风预案履行职责。
第十七条 防台风期间,本渔港经营主体应服从本渔港管理部门的指挥调度;进港避风的船舶须服从现场管理人员的指挥,在指定的泊位有序停泊;在发布防台风相应警报后,港区内停止装卸货、运输及交易活动。
第十八条 港内发生火灾、沉船、碰撞等应急事件时,本渔港监督管理机构有权调度在港船舶协同救助。港内船舶应服从调度。
第十九条 本渔港的消防工作纳入属地消防责任制范围;区应急管理局、区农业农村和水利局应指导捷胜镇人民政府制定《渔港应急救援预案》并组织实施,组建消防管理网络;区消防救援局应加强对渔港消防管理的指导和监管工作。
第二十条 船舶在渔港停泊期间应安排人员值班,发生突发事件时,事故现场有关人员应当及时发出呼救信号,并采取积极有效的自救、互救措施。接到报告的渔港管理部门应及时组织、协调指挥救助行动。接到相关指令的相关部门、单位和船舶应当服从统一指挥,积极配合救助行动。
第二十一条 任何单位和个人未经渔港监督管理机构批准不得在渔港范围内进行明火作业、燃放烟花爆竹和进行电、气、焊等危害渔港及船舶安全的相关作业。
第二十二条 对影响安全航行、航道整治以及有潜在危险的沉没物、漂浮物,其所有人、经营人应当及时打捞清除。
第二十三条 渔港内成品油供应站(点)、船舶等供油行为,应在辖区内注册登记取得成品油零售经营批准许可的企业并符合安全管理要求。严禁无证无牌加油站(点)、车、船在渔港区域从事非法加油活动。未经渔港监督管理机构批准,危险化学品运输船舶不得进入渔港水域。
第二十四条 爱护渔港助航、消防等各种公共设施,任何单位和个人不得侵占、损坏消防、助航、导航标志等渔港设施。发现航标漂失、移位、受损或侵占、损坏渔港设施的,损坏者应恢复原状或照价赔偿。
不得在渔港区域内擅自设置有碍安全的标志,不得建造影响安全的设施。造成渔港设施损坏的,依法承担赔偿责任。
第二十五条 在渔港范围内新建、改建、扩建各种设施或进行其他水上、水下施工作业的,应当按照国家规定办理审批手续;影响通航的,渔港监督管理机构应当在施工前发布航行通告。
第二十六条 自觉遵守国家法律法规及相关规定,维护渔港秩序。不得从事水上娱乐等妨碍渔港安全的相关活动,严禁从事偷渡、走私、贩毒等违法犯罪活动。
第二十七条 本渔港经营主体应加强安全生产管理,制定安全作业操作规程,保障渔港设施、码头、道路的正常运行,并对经营活动范围内的安全工作负责。
第二十八条 本渔港管理有关部门应按照《中华人民共和国行政处罚法》规定完善渔港智能电子监管设施设备配置和应用,建立完善船舶进出卡口制度,加大对船舶的安全核查管理和违法行为的打击力度。
第五章 渔港环境管理
第二十九条 遵守环境保护的相关法律法规及渔港环境保护相关规定,防止对渔港水域及其周边环境造成污染和危害。
在渔港范围外从事工程建设等活动可能导致港区淤积、水文变化或者危及渔港安全的,施工单位应当采取有效的防护措施。
第三十条 本渔港经营主体不得向港区内倾倒生活、生产、建筑垃圾、油类和油性混合物及其他污水等废弃物;不得从事可能污染渔港水域、环境的作业活动,报废的船舶不得在渔港水域范围内停泊。
船舶垃圾应当分类后交由具备资质的垃圾处理单位处理,不得排入渔港水域。
渔船修造等可能产生污物的渔港经营主体应加强管理,设置污物围栏等防护措施,及时清理,防止污物进入渔港水域。
第三十一条 应当遵守供电部门的管理规定,做到规范安全用电,严禁私拉乱接岸电。
第三十二条 应爱护渔港绿化及其他设施,严禁损毁渔港绿化设施,严禁在渔港边乱堆乱放杂物或违法搭建。
第三十三条 渔港水域发生污染事故应立即采取措施控制和消除污染,并尽快报告,由渔港监督管理机构牵头依法进行调查处理。
第六章 船舶进出渔港管理
第三十四条 船舶、海上设施进出渔港应当遵守渔港管理章程、避碰规则和渔业船舶进出渔港报告等规定,向渔港监督管理机构申请办理进出港报告手续,并接受安全检查。
第三十五条 船舶、海上设施在渔港内航行、作业、停泊,应当按顺序进行,严禁船舶追越、争档抢位和在航道内锚泊。公务船在执行应急任务时有优先通行权。
第三十六条 船舶、海上设施有下列情形之一的,渔港监督管理机构有权禁止其离港,或责令其停航、停止作业。
(一)违反中华人民共和国法律、法规或者规章的。
(二)处于不适航状态的。
(三)发生交通事故,手续未清的。
(四)未按规定配备、开启通讯定位等终端设备,未向有关部门交付应当承担的费用,也未提供担保的。
第七章 交通事故处理
第三十七条 在渔港水域内的发生的交通事故,应当根据《中华人民共和国渔港水域交通安全管理条例》规定进行处理。
第三十八条 渔港水域内发生交通事故引起的民事纠纷,双方当事人可以协商处理,协商不成的由渔港监督管理机构调解处理,或者依法向有管辖权的人民法院提起诉讼。
第八章 附则
第三十九条 对违反本渔港有关管理规定的,由各职能部门按其性质,依法予以处理。
第四十条 本章程由汕尾市城区农业农村和水利局负责解释。
第四十一条 本章程未规定的事项,按有关法律法规执行。本章程如与国家法律法规及上级政策规定不一致时,以国家法律法规及上级政策规定为准。
第四十二条 本章程于印发之日起执行,有效期3年。
附件:
1.捷胜渔港港界图
2.捷胜渔港功能区划图
附件1
捷胜渔港港界图

附件2
捷胜渔港功能区划图

相关稿件:汕尾市城区捷胜渔港管理章程(试行)(注释稿).docx
关联稿件:关于《汕尾市城区捷胜渔港管理章程(试行)》的政策解读
您访问的链接即将离开“汕尾市城区人民政府”门户网站,是否继续?




您现在所在的位置 :
2025-11-13 12:06
粤公网安备 44150202000076号